Добро пожаловать на http://vipplan.ru

Випплан Пугачев - это тысячи проектов домов в нашем каталоге!

Вы всегда сможете найти для себя проект дома вашей мечты! Даже если этого не случилось, мы готовы в любую минуту предложить проект индивидуального дома.

Забыли пароль?
Вы еще не регистрировались?

Перейдите по ссылке ниже на страницу регистрации.

Регистрация...

Внимание!!!

В проектную документацию могут быть внесены изменения любой сложности, в соответствии в Вашими пожеланиями!

Полезные статьи

Выбор сайдинга

Прежде чем купить сайдинг, нужно определиться зачем он нужен: для защиты фасада от непогоды, для придания привлекательности внешнему виду дома или для утепления дома.Что же из себя представляет сайдинг? Сайдинг – это материал для облицовки фасада из компаунда. В данной статье мы поможем Вам определиться выбором сайдинга для отделки фасада дома...

Проект дома

Строительство дома начинается с подготовительного этапа, основной частью которого является проект. Разработка дизайнерского проекта сопровождается оформлением документов после выбора участка....

Проекты домов и коттеджей > Каталог проектов домов > Одноэтажный дом с мансардой, гаражом, террасой и балконом Vg2539

Одноэтажный дом с мансардой, гаражом, террасой и балконом Vg2539

Одноэтажный дом с мансардой, гаражом, террасой и балконом
Зарегистрируйтесь

Проект № Vg2539


Техническое описание
Общая площадь: 249 м2
Жилая площадь: 139.67 м2
Высота здания: 9.05 м
Размеры дома: 16.24м×11.14м
Кол-во комнат: 6
Цокольный этаж: нет
Гараж: нет
Мансарда: есть

Kонструкция
Фундамент: монолитная плита
Перекрытия: сборные ж/б плиты

Архитектурный раздел
Конструктивный раздел
АР+КР - 64 000 (Со скидкой 20%)
Одноэтажный дом с мансардой, гаражом, террасой и балконом с размерами здания 16,24 x 11,14 м. Фундамент - монолитная ж/б плита. Наружные стены - газобетонные блоки, клинкерные термопанели. Внутренние стены - газобетонные блоки. Перегородки - газобетонные блоки. Пол 1 этажа - пол по фундаментной плите. Перекрытие межэтажное - сборные ж/б плиты перекрытия. Крыша - многоскатная. Кровля - металлочерепица. Окна - металлопластиковые.
Генплан застройки участка / Паспорт проекта 7000 руб / 10000 руб
Инженерный раздел (полный) 124500 руб
Смета на строительство 62250 руб
Теплотехнический расчет материалов стен Бесплатно
Стоимость проекта со незначительнми изменениями 73750 руб
Стоимость проекта со средними изменениями* 92500 руб
Стоимость проекта со значительными изменениями** 97400 руб

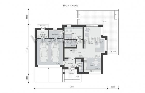
План первого этажа


Прихожая - 4,75 м2
Холл - 9,07 м2
Кладовая - 3,77 м2
Кухня - 12,54 м2
Гостиная - 30,10 м2
Кабинет - 11,48 м2
С/у - 4,29 м2
Бойлерная - 5,72 м2
Подсобка - 4,45 м2
Гараж - 35,15 м2

План мансардного этажа


Холл - 7,26 м2
Спальня - 1,52 м2
Спальня - 17,49 м2
Спальня - 15,60 м2
С/у - 11,36 м2
Бильярдная - 46,48 м2
Гардероб - 8,58 м2
Балкон — 3,12 м2
Одноэтажный дом с мансардой, гаражом, террасой и балконом Одноэтажный дом с мансардой, гаражом, террасой и балконом Одноэтажный дом с мансардой, гаражом, террасой и балконом Одноэтажный дом с мансардой, гаражом, террасой и балконом

Модификации проектов

Внесение изменений и привязка к участку строительства

В любой из проектов от компании VIPplan - Пугачев по вашему желанию могут быть внесены изменения в материалы стен, материалы наружной отделки дома, а также будет произведена адаптация проекта под конкретный регион строительства (с учетом грунтов региона, геологических особенностей вашего участка и местных климатических условий) - БЕСПЛАТНО !!! (кроме проектов со скидкой и проектов наших партнеров).

Любой из проектов, размещенных на сайте pugachev.vipplan.ru мы можем выполнить из требуемых вам строительных материалов: ячеистый бетон (газобетон, пеноблок), керамоблок, кирпич, шлакоблок, бетонный блок, дерево (брус, клееный брус), каркасная технология (деревянный каркас, металлокаркас (ЛСТК)).

Фасад дома и его наружную отделку так же возможно выполнить с применением различных облицовочных материалов: структурной штукатурки, (с утеплителем и без), сайдингом (пластиковый или металлосайдинг), фиброплитами, кирпича.

 
6 Избранные
проекты

Доставка проектов по России: Москва (Московская область), Санкт-Петербург (Ленинградская область), Краснодар, Ростов-на-Дону, Ставрополь, Сочи, Волгоград, Новосибирск, Белгород, Брянск, Воронеж, Саратов, Хабаровск, Астрахань, Нальчик, Владикавказ, Екатеринбург, Тюмень, Самара, Нижний Новгород, Казань, Пермь, Уфа, Челябинск, Красноярск, Ханты-Мансийск, Иркутск, Курган, Оренбург, Омск, Томск, Барнаул, Новокузнецк, Кемерово, Абакан, Чита, Якутск, Южно-Сахалинск, Петропавловск-Камчатский и страны ближнего зарубежья: Белоруссия, Украина, Казахстан